Ratsinformationssystem
Beschlussvorschlag ohne finanzielle Auswirkungen - 2023/276
Grunddaten
- Betreff:
-
Plangebiet „Wohnen – Hinter den Gärten“, Planbereich 06.02-17 in Leonberg-Warmbronn
- Verlegung der im Bebauungsplanentwurf festgesetzten Trafostation auf das städtische Flurstück Nr. 23/5, außerhalb des Plangebiets
- Status:
- öffentlich (Vorlage freigegeben)
- Vorlageart:
- Beschlussvorschlag ohne finanzielle Auswirkungen
- Federführend:
- Planungsamt
Beratungsfolge
| Status | Datum | Gremium | Beschluss | NA |
|---|---|---|---|---|
|
●
Geplant
|
|
Ortschaftsrat Warmbronn
|
Entscheidung
|
|
|
|
27.11.2023
|
Sachverhalt
Sachverhalt mit der Stellungnahme der Verwaltung
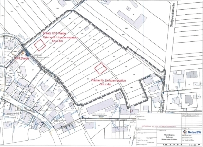
Zur Sicherstellung der Stromversorgung im Bereich des Plangebiets „Wohnen – Hinter den Gärten“ benötigt die Netze BW Flächen für zwei Umspannstationen mit den Maßen von je 5m x 4m Grundfläche. Die Flächen sollen zu Gunsten der Leo Energie mit einer Grunddienstbarkeit gesichert werden. Eine Umspannstation muss vorgesehen werden, um die altertümliche, als Kulturdenkmal ausgewiesene Turmstation „Bei der Wette“ zu ersetzen. Diese liegt außerhalb des Plangebiets. Die Umspannstation „Bei der Wette“ ist für die elektronische Erschließung für das Baugebiet „Wohnen - Hinter den Gärten“ nicht geeignet (Kulturdenkmal). Selbst wenn der Ersatz der Umspannstation „Bei der Wette“ möglich wäre, ist die zur Verfügung stehende Grundfläche zu gering. Daher wird eine weitere Fläche für die Umspannstation für das Plangebiet benötigt, welche zur Erschließung für Strom und E-Mobilität notwendig ist. In beiliegendem Plan sind die im Bebauungsplanentwurf vom 02.05.2023 vorgesehenen zwei neu geplanten Standorte skizziert:
Abbildung 1: Standorte im Bebauungsplanentwurf
Abbildung 2: Standorte Planung zur Offenlege (alt); Quelle Netze BW
Die ursprüngliche Planung zur Offenlage des Bebauungsplanentwurfs sieht die oben dargestellten Standorte innerhalb des Plangebiets vor. Die im Planteil zum Bebauungsplan gekennzeichnete Fläche südlich des WA 7 (Seniorenwohnen) ist als Regenwasserabflusstrasse von jeglichen Hindernissen freizuhalten, weshalb die Umspannstation nicht unmittelbar an die Straße herangerückt werden kann.
Als Alternativstandort wird für den nordwestlichen Standort erwogen, die Stationsfläche auf den öffentlichen Parkplatz Flurstücknummer 23/5 zu verlegen (außerhalb Plangebiet). Dieser Vorschlag wurde aus stadtgestalterischen Gründen, zur Aufwertung und Gestaltung des Quartiereingangs von Süden her, entwickelt. Durch die Verlegung der Trafostation auf das städtische Grundstück Flst. Nr. 23/5 außerhalb des Plangebiets, entfallen öffentliche Stellplätze. Eine Kompensation der Stellplätze ist nicht vorgesehen. Zur Straße “Hinter den Gärten” hin, steht ein Baum. Von Seiten der Netze BW soll dieser nach Möglichkeit erhalten werden, dies kann zum gegenwärtigen Zeitpunkt jedoch nicht garantiert oder gewährleistet werden. Hierzu muss eine Begutachtung des Baumes erfolgen. Der Bebauungsplan „Ortskernsanierung Warmbronn“ Teil 1 (15.01.1980) weist dem Flurstück Nr. 23/5 „öffentliche Parkflächen“ zu. Durch die Zulassung der Trafostation entsteht kein planungsrechtlicher Konflikt, diese ist über § 14 Abs. 2 BauNVO als Ausnahme genehmigungsfähig.
Abbildung 3: Planung Umspannstation Alternative Flurstück Nr. 23/5 (Quelle Netze BW)
Abbildung 4: Planung Umspannstation Alternative Flurstück Nr. 23/5 (Quelle Netze BW)
